Ugo M. - Architecte et Maquettiste

Ugo M.

Architecte et Maquettiste

  Grenoble (38)       500 €/jour       Expérience : 4-6 ans      

Architecte Maquettiste maquette concours maquette d'etude image de rendu prototypes architecture dessin technique dessin projet

En quelques mots

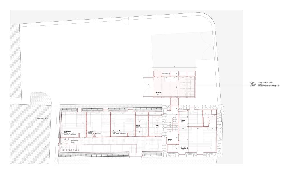
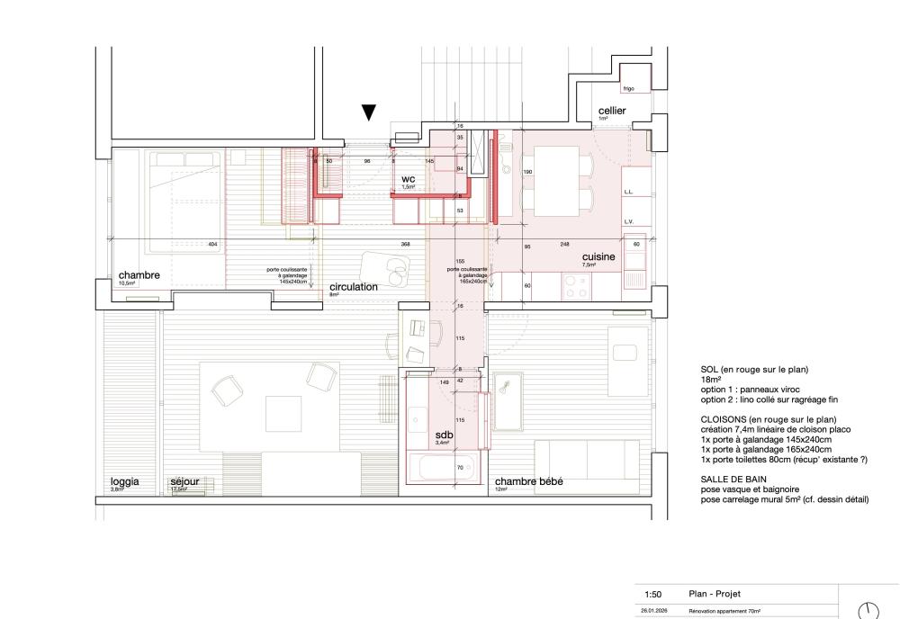
Atelier Modello est une structure indépendante qui développe une pratique architecturale sensible au détail et nourrie d’une culture de la construction bois par la fabrication en atelier de mobilier et de maquettes.

Chaque projet est l’occasion de convoquer de grands thèmes souvent liés : le génie du lieu, le détail constructif, les enjeux économiques, le jeu, la simplicité par la sobriété.
La structure en freelance permet de facilement jongler entre projets architecturaux et fabrication de maquettes ou d’images.

L’atelier est créé en 2024 par Ugo Masnada, architecte, après plusieurs années d’expérience acquises en agence en Suisse et en France ainsi que lors d’expérimentations faites en workshops.

Références

2024 Atelier Modello indépendant (FR)
2018-2024 Architecte - Maquettiste chez LVPH architectes à Fribourg (CH)
2018 stage chez KingKong architecture à Bordeaux (FR)
2016 stage chez Bertrand Sauterel architecte à Payerne (CH)

Etudes

MAarch HES-SO Fribourg
BAarch ENSA Marseille

Ces freelances peuvent aussi vous intéresser
Proposer une mission